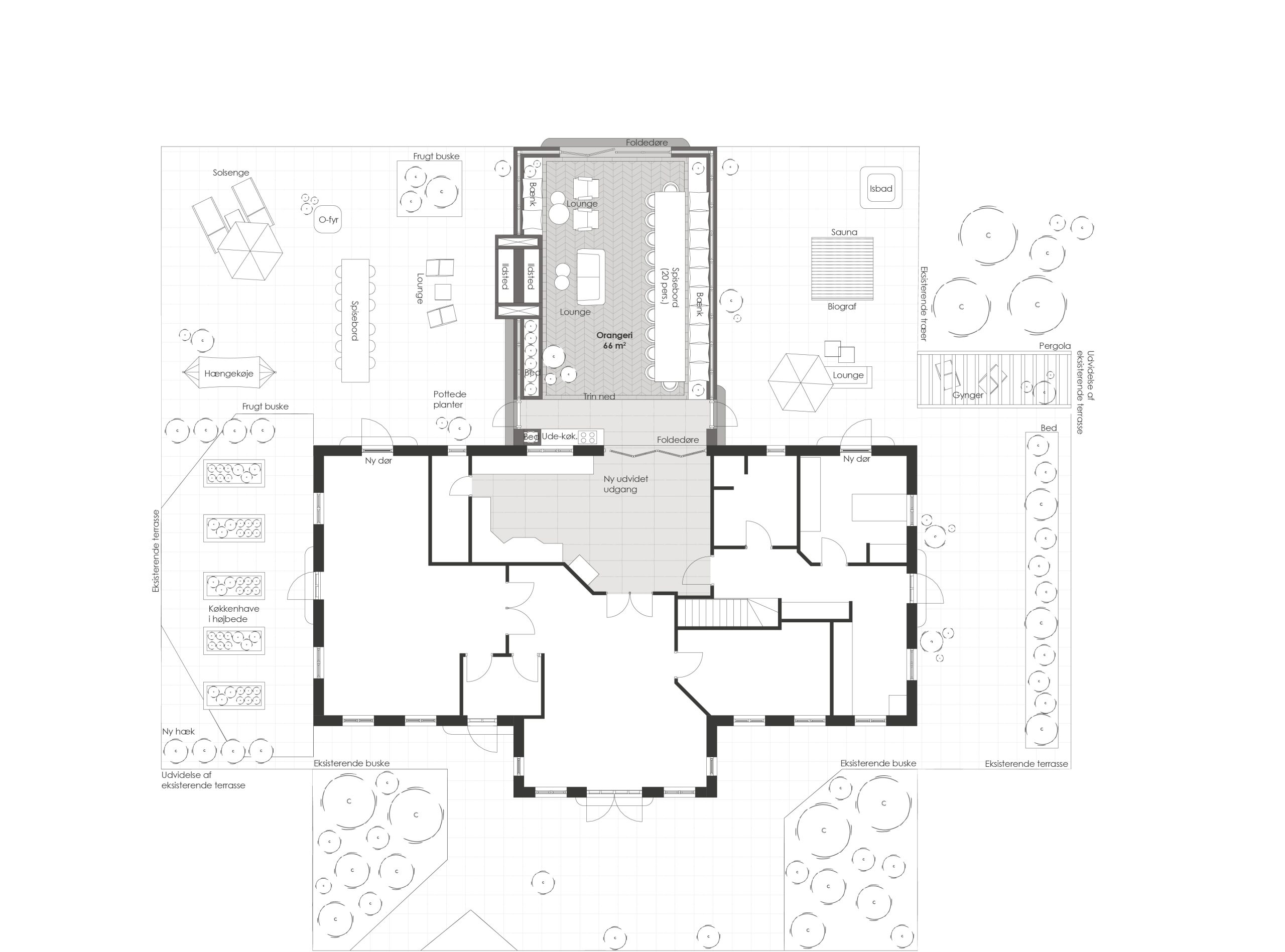
Orangeri
Kategori
Orangeri | tilbygning
Lokation
Nordjylland | Danmark,
Bygherre
Privat
Areal
70 m2
Status
Skitseforslag | 2024
Skitseforslaget er udarbejdet for en privat bygherre, som havde et ønske om at få udført et orangeri i forbindelse med det eksisterende hovedhus. Det nye orangeri skaber et bindeled mellem ude og inde, og giver mulighed for at udvide udendørssæsonen. Ydermere dannes der nye udendørs arealer på hver side af orangeriet, som indrettes til forskellige formål, og dermed dannes der nye rum i den store have.


